中古マンション AZEST西高島平
所在地
板橋区三園1丁目
2,580万円
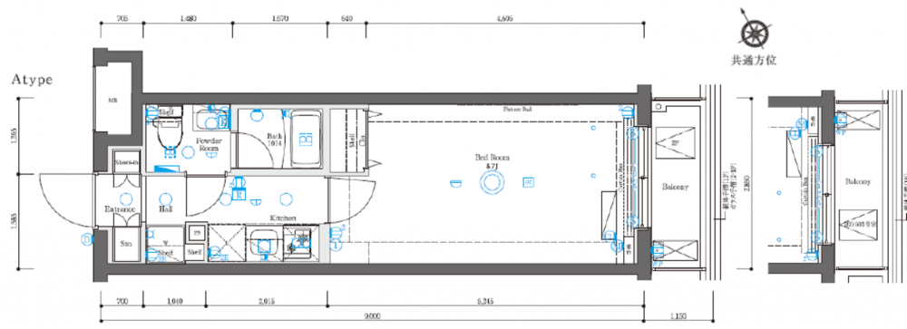
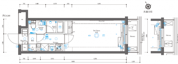
25.66m²
1K
大手町・霞が関等のビジネス中心地までアクセスしやすい≪都営三田線 西高島平駅≫まで徒歩5分!
現在入居中です。投資用でぜひご検討ください。
物件概要
- 交通
-
都営三田線 西高島平駅 まで 徒歩5分
- 専有面積
- 壁芯 25.66㎡
- バルコニー
-
3.27㎡ (北西側)
面積不明 - 所在階/階数
- 3階/5階
- 築年数
-
2020年
(令和2)
7月
築5年 - 建ぺい率
- 容積率
- 土地権利
- 所有権
- 構造および階数
- RC(鉄筋コンクリート) 造 地上5階建
- 総戸数
- 小学校区
- 中学校区
- 地目
- 現況
- 賃貸中
- 引渡時期
- 相談
- 駐車場
- 駐車場月額
- 管理形態
- 全部委託
- 管理方式
- 管理会社
- AZEST Community(株)
- 管理費
- 5,900円
- 修繕積立費
- 3,900円
- 上水道
- 下水道
- ガス
- 都市計画
- 用途地域
- 1種中高
- 設備・条件
- 備考
- 取引態様
- 仲介



