中古マンション キャニオンマンション小竹向原
所在地
板橋区小茂根3丁目
3,590万円
51.48m²
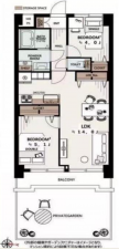
2LDK
☆新耐震基準
☆自然豊かで落ち着いた住環境
☆専用庭月
☆スーパー・公園も近く便利
コモディイイダ東新町店まで徒歩7分(425m)
板橋東新町郵便局まで徒歩5分(350m)
ファミリーマート 板橋台橋通り店まで徒歩4分(400m)
宮下医院まで徒歩11分(750m)
まいばすけっと板橋向原3丁目店まで徒歩14分(1000m)
物件概要
- 交通
-
有楽町線 小竹向原駅 まで 徒歩12分
副都心線 小竹向原駅 まで 徒歩12分
東武東上線 ときわ台駅 まで 徒歩17分
- 専有面積
- 壁芯 51.48㎡
- バルコニー
-
5.56㎡ (東側)
面積不明 - 所在階/階数
- 1階/6階
- 築年数
-
1984年
(昭和59)
5月
築41年 - 建ぺい率
- 容積率
- 土地権利
- 所有権
- 構造および階数
- RC(鉄筋コンクリート) 造 地下1階 地上6階建
- 総戸数
- 47戸
- 小学校区
- 上板橋第二 ( 550m )
- 中学校区
- 桜川 ( 850m )
- 地目
- 現況
- 空
- 引渡時期
- 相談
- 駐車場
- 無
- 駐車場月額
- 管理形態
- 全部委託
- 管理方式
- 管理会社
- キャニオンサービス(株)
- 管理費
- 9,781円
- 修繕積立費
- 18,940円
- 上水道
- 下水道
- ガス
- 都市ガス
- 都市計画
- 用途地域
- 1種中高
- 設備・条件
- 食器洗浄乾燥機、シャンプードレッサー、浴室乾燥機、モニタ付インターホン、洗浄便座、追い焚き、エレベーター、冷蔵庫/浄水器/給湯/洗濯機置場,室内洗濯機置場/冷房/暖房/エアコン/ベッド/照明器具付き/専用庭/収納スペース/外観タイル張り
- 備考
-
専用庭有:19.76㎡
ペット飼育不可
家具・架電付き販売 ※撤去相談可能
- 取引態様
- 仲介



